The design project Amber Loft

Property type:

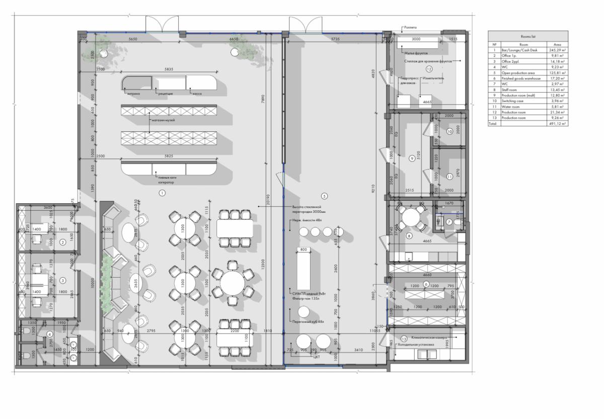
The design project was developed for a distillery space that combines a production area with a tasting zone. The interior follows an industrial aesthetic with an emphasis on brick, metal, and graphic details.

The guest area unites seating, a bar, and a tasting table, designed in a warm palette with soft furniture and natural wood. Large graphic posters enhance the atmosphere of a contemporary bar.

Special attention is given to showcasing production elements — tanks, equipment, and barrels — which become part of the visual composition and reinforce the authenticity of the space. Lighting is built on the contrast of warm illumination and neon accents that highlight the industrial character.

Photos