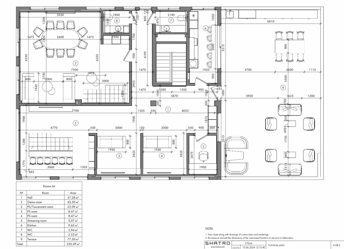
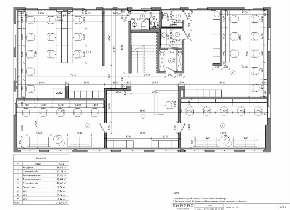
Computer club

A closed, purpose-built space designed for esports training and private tournaments
The project was implemented from scratch — from developing the design concept to completing all construction and engineering works.

The interior is built on strong visual contrast: a fully dark palette, focused lighting, and vibrant neon elements. The space includes several functional zones — gaming stations, a lounge area, and a separate tournament room with a poker table.

Every detail — from lighting scenarios to custom built-in furniture — was designed by our team and delivered as a turnkey solution.

• Property type: club
• Area: 400 m²
• Work format: turnkey

SCOPE OF WORK:
• working design documentation
• demolition
• installation of new electrical systems, ventilation and air conditioning
• structured cabling (SCS)
• gypsum board partitions
• supply and installation of finishing materials
• finishing works
• production and installation of built-in furniture
• technical supervision
• terrace construction and finishing