OFFICE SHATRO engineering

The SHATRO Engineering office is a two-level space delivered by our team as a full turnkey project.

The interior follows the company’s signature palette — white, sky blue and deep navy — combined with high ceilings and glass railings that enhance the sense of openness and scale.

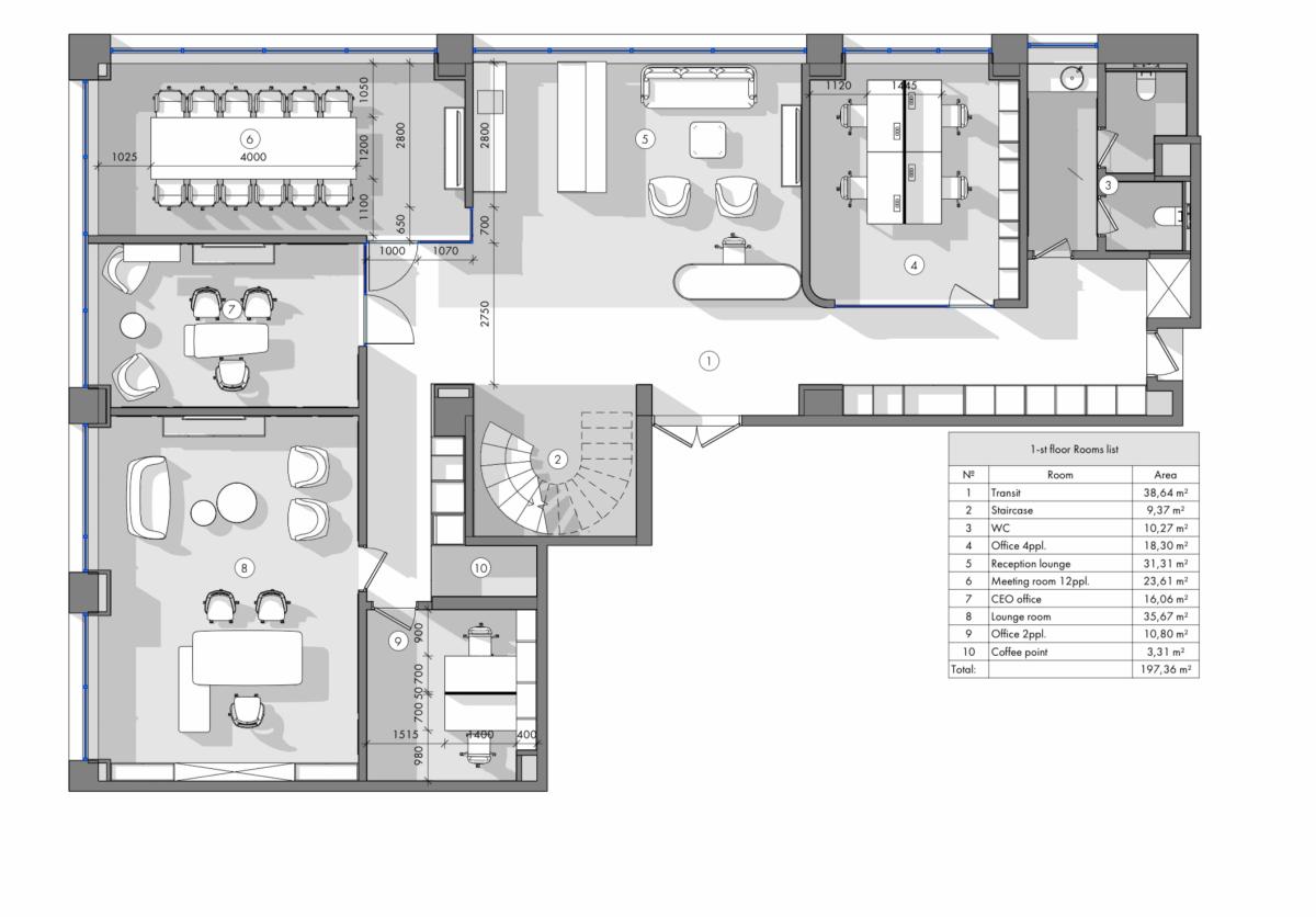
The space includes an open-plan work area, executive offices, a kitchen zone and several meeting rooms equipped with acoustic panels and video-conference systems. There are two executive offices, each designed in a calm, refined aesthetic with premium furniture, accent lighting and functional layouts for work and meetings.

A key feature of the office is the full bar area designed in the corporate palette. This element reflects the culture of SHATRO Engineering — business-focused yet dynamic, oriented toward comfort and contemporary work scenarios.

The work zones are equipped with custom-built furniture produced by our own manufacturing line: built-in storage systems, kitchen modules and workspace cabinetry. The interior also incorporates pieces from global brands, including Frau Paltron, Poliform and others.

The representative floor features a bespoke carpet with a graphic stripe pattern created specifically for SHATRO Engineering.

This project reflects our approach to workplace design: precise engineering, high-quality finishing, thoughtful material selection and attention to every detail.

• Type of object: office

• Area: 380 m²

• Scope of work: turnkey project