Office in "The Oval" on the 10th floor

A functional office space designed for an IT company.
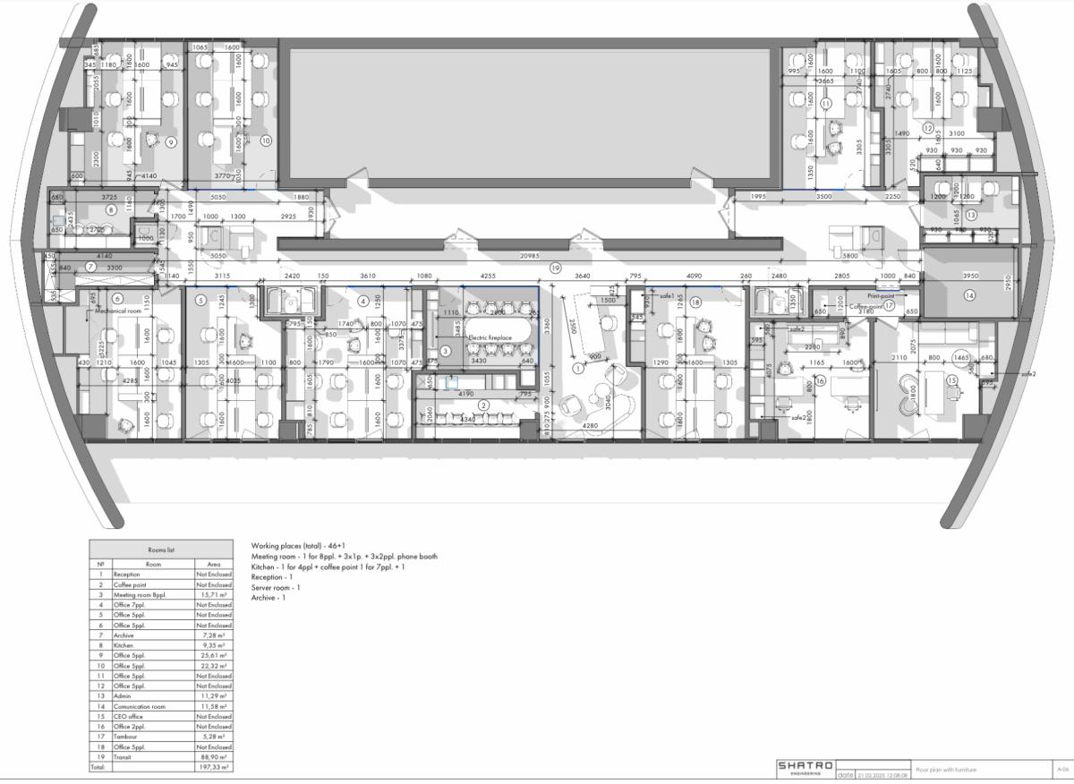
The project includes employee offices, meeting rooms, executive offices, mini-kitchens, and coffee areas. Acoustic booths for calls and online meetings are also provided.
The interior features bright color accents and contrasting elements. Thoughtful zoning, decorative lighting, and a rich palette create an energetic and modern working environment.

• Property type: Office
• Area: 400 m²
• Work format: Project delivered turnkey

SCOPE OF WORK:
• Demolition
• Installation of new electrical systems, ventilation
• Air conditioning
• Fire extinguishing systems
• Structured cabling (SCS)
• Gypsum board partitions, glass partitions
• Raised floors
• Supply and installation of finishing materials
• Finishing works
• Production and installation of built-in furniture
• Smart Home (KNX)
• Design and engineering
• Author’s supervision and technical supervision
• Preparation of as-built documentation
• Project handover to AIK